- Woonoppervlakte
- Circa 48 m²
- Inhoud
- Circa 160 m³
- Bouwjaar
- Gebouwd in 1935
- Aantal kamers
- 3 kamers (2 slaapkamers)
*ENGLISH TEXT BELOW*
OMSCHRIJVING
Super sfeervol en zeer praktisch ingedeeld 3-kamerappartement van ca. 50m² met zonnig breed balkon, stijlvolle erker met glas-in-lood en EEUWIGDUREND AFGEKOCHTE ERFPACHT! Het turn-key appartement ligt in de populaire en hippe Indische Buurt met alle denkbare voorzieningen en gezellige cafés/restaurants op loopafstand. Voor ontspanning liggen het Flevopark en het Oosterpark nabij. En ook qua openbaar vervoer is de ligging uitstekend: diverse bus- en tramverbindingen, evenals het Muiderpoortstation liggen om de hoek. Het goed onderhouden pand, onlangs nog geschilderd en opnieuw gevoegd, wordt beheerd door een kleine actieve en financieel gezonde VvE met een MJOP. In 2004, ten tijde van de splitsing in appartementsrechten, is het pand geheel gerenoveerd en geïsoleerd. Kortom; een kant-en-klaar, licht 3-kamerappartment op een fantastische locatie om zo te betrekken!
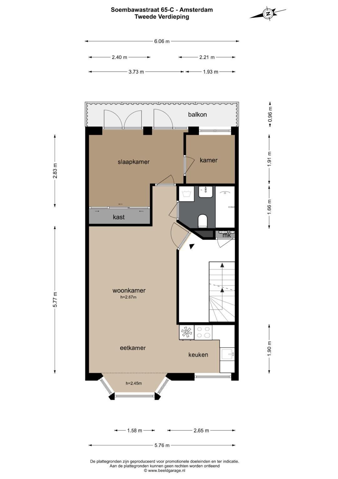
INDELING
Via het verzorgde gemeenschappelijke trappenhuis wordt het appartement op de tweede verdieping bereikt. Vervolgens de entree van het appartement. Het appartement heeft een zeer praktische indeling, met een fijne, lichte L-vormige woonkamer aan de voorzijde met een moderne open keuken. Deze keuken is voorzien van een hoekaanrecht, boven en onder kasten en diverse inbouwapparatuur: een 4-pits kookplaat met schouw, een vaatwasser en koelkast. Aan de achterzijde van de woning ligt een ruime slaapkamer met een grote vaste kastenwand. Via deze kamer is er toegang tot de tweede kleinere slaapkamer. Deze doet thans dienst als werkkamer, maar kan ook als kinderkamer gebruikt worden. Vanuit de grote slaapkamer is er toegang tot het achtergelegen zonnige balkon gericht op het zuidoosten. De badkamer is in het midden van het appartement gesitueerd en voorzien van een ligbad, een wastafel, toilet en opstelplaats voor de wasmachine met daar bovenop eventueel de droger. Door het gehele appartement ligt een fraaie laminaat vloer.
OMGEVING
De Soembawastraat is een rustige straat in de Indische Buurt, gelegen tussen de Dapperbuurt en het Flevopark. De afgelopen jaren is deze buurt volledig getransformeerd tot een populaire en bruisende wijk! Waar men vroeger vooral naar De Pijp ging voor historische architectuur en traditionele charme, vind je dit nu volop in de Indische Buurt. Geniet van de sfeer op de vele lokale terrassen en bars, zoals Bar Botanique, Clos, Het Badhuis, Le French Café en Bar Basquiat. Voor fijnproevers zijn er onder andere Wilde Zwijnen, Turbo, Massalia, de nieuwe Oyster & Wine bar La Douzaine en The Harbour Club. Om de hoek bevindt zich ook Studio K, een theater/bioscoop/café. In de nabij gelegen Javastraat vind je diverse winkels en delicatessen, en de dagelijkse Dappermarkt biedt alles wat je nodig hebt. Voor ontspanning liggen het Flevopark en het Oosterpark op loopafstand, waar je de echte Amsterdamse ervaring beleeft. Met de auto en het openbaar vervoer is het appartement uitstekend bereikbaar: trams (1 en 14), bussen (22 en 65) en station Muiderpoort liggen op loopafstand. De ringweg (A10) is binnen 5 minuten bereikbaar via afrit S114. Bovendien ben je met de fiets in slechts tien minuten in het stadscentrum. Kortom, een toplocatie met alles wat Amsterdam te bieden heeft binnen handbereik!
BIJZONDERHEDEN
- energielabel C
- bouwjaar 1935
- zonnig breed balkon
- zeer praktische indeling
- CV-ketel vernieuwd in 2024
- zeer veel daglicht toetreding
- erfpacht eeuwigdurend afgekocht
- oplevering va. februari-maart 2026
- strak gestuukte wanden en plafonds
- actieve en financieel gezonde VvE met MJOP
- schilderwerk en voerwerk uitgevoerd in 2024
- panden 65-67-69 geheel gerenoveerd in 2004
- Flevopark en het Oosterpark op loopafstand gelegen
- gesplitst in 5 appartementsrechten met vergunning in 2004
- uitstekend gelegen m.b.t. NS-stations, tram, bus en uitvalswegen
- ideaal gelegen m.b.t. winkels cafés/restaurants in Oost en Centrum
Deze informatie is door ons met de nodige zorgvuldigheid samengesteld. Onzerzijds wordt echter geen enkele aansprakelijkheid aanvaard voor enige onvolledigheid, onjuistheid of anderszins, dan wel de gevolgen daarvan. Alle opgegeven maten en oppervlakten zijn slechts indicatief.
*ENGLISH TEXT*
DESCRIPTION
Super atmospheric and very practically laid-out 3-room apartment of approx. 50m² with a wide, sunny balcony, a stylish bay window with stained glass, and perpetually redeemed ground lease! This turn-key apartment is located in the popular and trendy Indische Buurt, with all imaginable amenities and cozy cafés/restaurants within walking distance. For relaxation, both Flevopark and Oosterpark are nearby. The location is also excellent in terms of public transport, with several bus and tram connections as well as Muiderpoort Station just around the corner. The well-maintained building—recently painted and repointed—is managed by a small, active, and financially healthy homeowners’ association (VvE) with a multi-year maintenance plan (MJOP). In 2004, at the time of the subdivision into apartment rights, the building was completely renovated and insulated. In short: a move-in-ready, bright 3-room apartment in a fantastic location, ready for you to move into!
LAYOUT
Via the well-kept communal staircase, you reach the apartment on the second floor. Upon entering, you’ll find a very practical layout: a pleasant, light-filled L-shaped living room at the front with a modern open kitchen. The kitchen features an L-shaped counter, upper and lower cabinets, and various built-in appliances, including a 4-burner hob with extractor hood, dishwasher, and refrigerator. At the rear of the apartment is a spacious bedroom with a large built-in wardrobe. From this room, there is access to the second, smaller bedroom — currently used as an office but also suitable as a child’s room. The large bedroom opens onto the sunny southeast-facing balcony at the back. The bathroom is centrally located in the apartment and equipped with a bathtub, washbasin, toilet, and a connection for a washing machine and dryer. Throughout the entire apartment lies an attractive laminate floor.
SURROUNDINGS
Soembawastraat is a quiet street in the Indische Buurt, situated between the Dapperbuurt and Flevopark. Over the past few years, this neighborhood has transformed into a lively and highly sought-after area! Where people once flocked to De Pijp for historical architecture and traditional charm, you can now find the same atmosphere here in the Indische Buurt. Enjoy the lively terraces and bars nearby, such as Bar Botanique, Clos, Het Badhuis, Le French Café, and Bar Basquiat. Food lovers will appreciate nearby restaurants like Wilde Zwijnen, Turbo, Massalia, the new oyster & wine bar La Douzaine, and The Harbour Club. Around the corner, you’ll also find Studio K, a heater/cinema/café. The nearby Javastraat offers various shops and delicatessens, and the daily Dappermarkt provides all your essentials. For relaxation, both Flevopark and Oosterpark are within walking distance — perfect for enjoying the true Amsterdam experience. Accessibility is excellent: trams (1 and 14), buses (22 and 65), and Muiderpoort Station are within walking distance, and the A10 ring road can be reached in 5 minutes via exit S114. You can also reach the city center by bike in just ten minutes. In short, a top location with everything Amsterdam has to offer within easy reach!
PARTICULARS
- built in 1935
- energy label C
- sunny, wide balcony
- very practical layout
- lots of natural light throughout
- ground lease perpetually redeemed
- smooth plastered walls and ceilings
- central heating boiler renewed in 2024
- transfer possible from February–March 2026
- painting and pointing work carried out in 2024
- flevopark and Oosterpark within walking distance
- divided into 5 apartment rights with permit in 2004
- buildings 65–67–69 completely renovated in 2004
- excellent access to NS train stations, tram, bus, and main roads
- active and financially healthy VvE with maintenance plan (MJOP)
- ideally located near shops, cafés, and restaurants in East and the city center
This information has been compiled with great care. However, no liability is accepted for any incompleteness, inaccuracies, or the consequences thereof. All stated dimensions and surface areas are indicative only. Lees de volledige omschrijving
Overdracht
- Vraagprijs
- € 400.000 k.k.
- Status
- Verkocht
- Bijdrage VvE
- € 150,00 per maand
Bouw
- Object type
- Bovenwoning (appartement)
- Soort bouw
- Bestaande bouw
- Bouwjaar
- 1935
- Soort dak
- Plat dak bedekt met bitumineuze dakbedekking en pannen
Oppervlakte en inhoud
- Woonoppervlakte
- 48 m²
- Inhoud
- 160 m³
- Gebouwgeb. buitenruimte
- 6 m²
Indeling
- Aantal kamers
- 3 kamers (2 slaapkamers)
- Aantal badkamers
- 1 badkamer
- Badkamervoorzieningen
- Ligbad en wastafel
- Aantal woonlagen
- 1 woonlaag
- Gelegen op
- 2e woonlaag
- Voorzieningen
- Mechanische ventilatie en TV kabel
Energie
- Energielabel
- C
- Isolatie
- Volledig geïsoleerd
- Verwarming
- Cv-ketel
- Warm water
- Cv-ketel
- Cv ketel
- Hr ketel (gas gestookt combiketel uit 2024, eigendom)
Buitenruimte
- Ligging
- Aan park, aan rustige weg, in woonwijk en vrij uitzicht
- Balkon / dakterras
- Balkon aanwezig
Bergruimte
- Schuur / berging
- Inpandig
Parkeergelegenheid
- Soort parkeergelegenheid
- Betaald parkeren, openbaar parkeren en parkeervergunningen
VvE checklist
- Inschrijving KvK
- Ja
- Jaarlijkse vergadering
- Ja
- Periodieke bijdrage
- Ja (€ 150,00 per maand)
- Reservefonds aanwezig
- Ja
- Onderhoudsplan
- Ja
- Opstalverzekering
- Ja
Energieverbruik in Amsterdam
Energielabel deze woning
Energielabel C
Publicatie energielabel:
Stroomverbruik per jaar
(Gemiddelde appartement in Amsterdam)
Gasverbruik per jaar
(Gemiddelde appartement in Amsterdam)
* Cijfers zijn afkomstig van het CBS en bedoeld als indicatie en kunnen verschillen voor deze woning
Indicatie hypotheeklasten
Eigen inleg:
Spaargeld / overwaarde
Rente:
Laagste 10-jaars rente
Laagste 10-jaars rente
2,98% - Centraal Beheer Groen... - NHG
3,25% - Centraal Beheer Groen... - 80%
Laagste 20-jaars rente
3,29% - Centraal Beheer Groen... - NHG
3,52% - Centraal Beheer Groen... - 80%
Laagste 30-jaars rente
3,41% - Centraal Beheer Groen... - NHG
3,74% - Centraal Beheer Groen... - 80%
Hypotheek:
Bruto maandlasten: € 0 p/m
Netto maandlasten: € 0 p/m
Hoe berekenen we dit?
Het rentepercentage is gebaseerd op de laagste 10 jaars vaste rente voor één hypotheekdeel. De vermelde rente (2.98% met NHG) is gecontroleerd op 08-01-2026. Deze berekening is gebaseerd op een annuïteitenhypotheek die volledig wordt afgelost, waarbij de maandlasten gedurende de gehele looptijd gelijk blijven. De werkelijke rente en netto maandlasten kunnen variëren, afhankelijk van uw persoonlijke situatie en de hypotheekverstrekker. Raadpleeg een financieel adviseur voor een nauwkeurige berekening en advies. Aan deze berekening kunnen geen rechten worden ontleend; het dient enkel als indicatie.
Documentatie
Kadastrale kaart
Leefomgeving
Plattegronden PDF
WOZ waarderapport
BAG uittreksel
Brochure
Akte-overstap-van-erfpacht-13-11-2019
Akte-van-levering-19-07-2013
Akte-van-splitsing-04-09-2004
Eigendomsinformatie-amsterdam-w-8257-a3
Energielabel-c
Lijst-van-zaken
Meetrapport-soembawastraat-65-c-amsterdam
Vve-huishoudelijk-reglement
Vve-mjop-keuringrapport
Vve-notulen-2023-02
Vve-notulen-2023-06
Vve-notulen-2024-02
Vve-notulen-2024-10
Vve-opstalverzekering-meerkeuzepolis
Woz-waardeloket-soembawastraat-65c-amsterdam
Nvm-vragenlijst-appartement
Bezichtiging
Bod uitbrengen
Waardebepaling
Zoekopdracht
Alles downloaden
Zonnegrenzen bekijken
Op de kaart
Inwoners in Amsterdam
Cijfers voor postcodegebied 1095
- Totaal aantal inwoners
- 14605 inwoners
- Mannen
- 50%
- Vrouwen
- 50%
Inwoners in Amsterdam
Cijfers voor postcodegebied 1095
- tot 15 jaar
- 14%
- 15 tot 25 jaar
- 16%
- 25 tot 35 jaar
- 39%
- 45 tot 65 jaar
- 21%
- 65 en ouder
- 11%
Huishoudens in Amsterdam
Cijfers voor postcodegebied 1095
- Eenpersoons zonder kinderen
- 56%
- Meerpersoons zonder kinderen
- 21%
- Huishoudens zonder kinderen
- 77%
Huishoudens in Amsterdam
Cijfers voor postcodegebied 1095
- Huishoudens met één kind
- 8%
- Huishoudens met meerdere kinderen
- 15%
- Huishoudens met kinderen
- 23%
Woningen in Amsterdam
Cijfers voor postcodegebied 1095
- Woningen voor 1945
- 18%
- Woningen tussen 1945 en 1965
- 1%
- Woningen tussen 1965 en 1975
- 1%
- Woningen tussen 1975 en 1985
- 15%
- Woningen tussen 1985 en 1995
- 15%
Woningen in Amsterdam
Cijfers voor postcodegebied 1095
- Woningen tussen 1995 en 2005
- 13%
- Woningen tussen 2005 en 2015
- 8%
- Woningen na 2015
- 29%
- Huurwoningen
- 80%
- Koopwoningen
- 20%
Overige in Amsterdam
Cijfers voor postcodegebied 1095
- Gemiddelde WOZ waarde
- € 356.000,-
- Personen onder de 65 met uitkering
- 12%
Overige in Amsterdam
Cijfers voor postcodegebied 1095
- Adressen per km²
- 4518
- Stedelijkheid (schaal 1 op 5)
- 100%
Korte feiten over Amsterdam
Amsterdam is de hoofdstad van Nederland. De stad, in het Amsterdams ook Mokum genoemd (afkomstig uit het Jiddisch), ligt in de provincie Noord-Holland, aan het IJ, het Noordzeekanaal en de monding van de Amstel. De stad ligt in de gelijknamige gemeente Amsterdam en heeft 873.338 inwoners (1 januari 2021), Groot-Amsterdam telt 1.459.402 inwoners.
Thuis in Vastgoed
Indien u vragen heeft of u wilt een bezichtiging inplannen, dan kunt u gebruik maken van het formulier hiernaast. Er zal daarna op korte termijn contact met u worden opgenomen.
Contact opnemen
Thuis in Vastgoed
Het best beoordeelde makelaarskantoor van Amsterdam Oost en omgeving
Bent u op zoek naar een woning in Amsterdam of wilt u uw woning verkopen? Dan helpen wij u graag verder. Door onze locatie aan het Pireausplein in het Oostelijk Havengebied weten wij precies wat er speelt op en rond het KNSM-eiland maar ook in de rest van Amsterdam kennen wij de markt op ons duimpje. Gekoppeld aan onze persoonlijke service en benadering maakt dat wij beoordeeld zijn tot beste makelaarskantoor van Amsterdam-Oost en omgeving en wel met een 9,4!
Naast verkoopbemiddeling is Thuis in Vastgoed al sinds de start actief op het gebied van aankoopbegeleiding en hebben er inmiddels honderden mensen via ons kantoor een nieuwe woning gevonden. Uiteraard is Thuis in Vastgoed ook actief op het gebied van taxeren en aangesloten bij het NRVT en het NWWI. Voor diverse andere specialismen zoals verhuur, erfpachttaxaties, particuliere beleggingsadviezen en expatservices kunt u ook terecht bij Thuis in Vastgoed.
Wilt u weten wat we voor u kunnen betekenen? Dan bent u bij Thuis in Vastgoed, makelaarskantoor in Amsterdam, aan het juiste adres. Neem eens contact op met ons voor een vrijblijvend advies!
THUIS IN VASTGOED
GOED GEVOEL
Nieuwste reviews
-
Troskerslaan 19
Onze ervaring met Thuis in Vastgoed laat zich zo omschrijven- Senioriteit- Uitstekende bereikbaarheid- Heldere communicatie- Goede kennis va...
-
Leonard Bernsteinstraat 70 A
Amazing and very personalized service. Communication is great and very clear. Everything was done on time and with no issues whatsoever. Ver...
-
Olympiakade 19 1
Zeer professioneel en deskundig. Een appartement kopen in Amsterdam is niet eenvoudig en Thuis in Vastgoed heeft ons hier geweldig in bijges...